Работаем без выходных
9:00 - 21:00
Запросить расчет
Металлические двери и металлоконструкции с доставкой по России!
Работаем без выходных
9:00 - 21:00
Запросить расчет

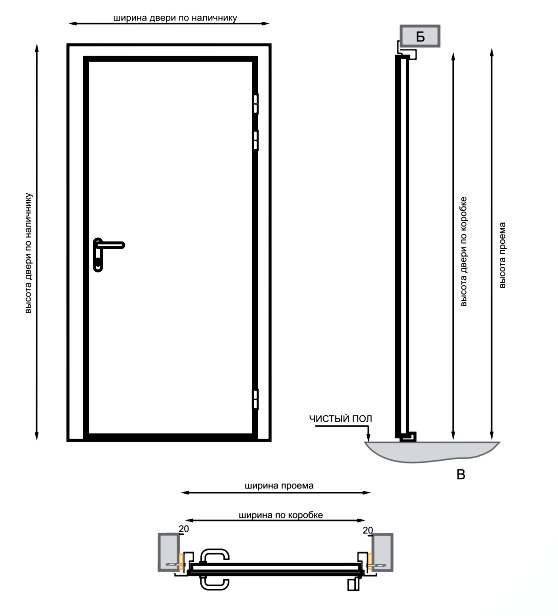
Техническое описание противопожарных дверей

ОСТАЛИСЬ ВОПРОСЫ?

Задайте их нашему менеджеру +7 (495) 749-93-88

Или закажите бесплатную консультацию

Наши менеджеры рады обслужить вас
в рабочие дни с 9:00 до 18:00 по московскому времени

Уважаемые клиенты уведомляем вас о том, что в связи с нестабильной ситуацией на рынке металлопроката цена на сайте может отличаться от фактической. Окончательную стоимость можно узнать у оператора.
Понятно
Вверх
Перезвоним?